
Home + Design Studio- Hickory
Affordable homes at your fingertips
Get started with Home + Design Studio- Hickory
Find, design, and order your next home in a few clicks.
Dealer License #:
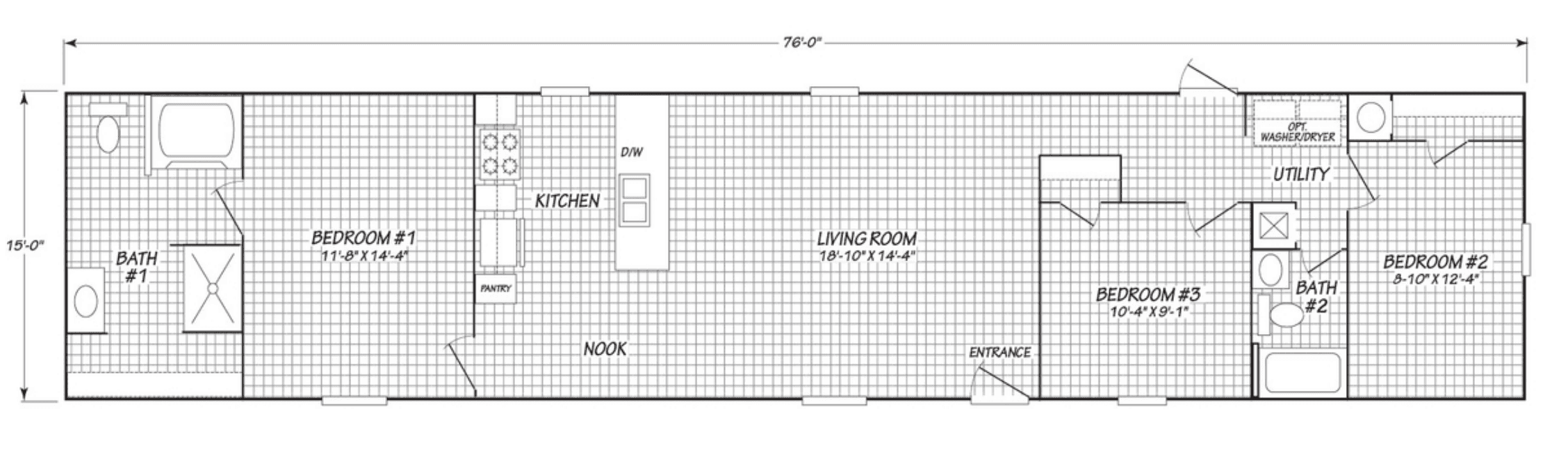
15X76 Cavco Pheonix (SW) 3 Bed, 2 Bath
Enter your address or APN to check if this home fits on your property
Enter your property street address or APN
Images of homes are solely for illustrative purposes and should not be relied upon. Images may not accurately represent the actual condition of a home as constructed, and may contain options which are not standard on all homes.